È online la gara per la riqualificazione delle aree mercatali: si partirà con via Buontalenti e via di Franco, a seguire piazza Cavallotti e via del Giglio

Le ditte interessate all'aggiudicazione dell'appalto potranno presentare domanda entro l'8 maggio

Livorno, 9 aprile 2024 – È online il bando di gara per individuare l’impresa che realizzerà gli interventi di riqualificazione delle aree mercatali del centro storico di Livorno. 
Il progetto esecutivo, pubblicato insieme al bando, suddivide gli interventi in due stralci: il primo stralcio, per un valore di 3.391.149,19 euro, comprende la realizzazione delle opere di via Buontalenti e via di Franco, mentre il secondo stralcio, che sarà realizzato successivamente dalla stessa impresa aggiudicataria, comprende gli interventi in piazza Cavallotti e via del Giglio, per un importo di 1.125.854,74 euro. 
Le risorse totali che il Comune di Livorno investe nella riqualificazione delle aree mercatali ammontano quindi ad oltre quattro milioni e mezzo di euro.

L’appalto sarà aggiudicato in base al criterio dell’offerta economicamente più vantaggiosa, individuata sulla base del miglior rapporto qualità/prezzo tra le proposte che perverranno.
Il termine per la presentazione delle domande scade alle ore 10 di mercoledì 8 maggio.
Il bando “Riqualificazione dell’area mercatale di via Buontalenti e piazza Cavallotti” è pubblicato con il numero 014150/2024 sulla piattaforma regionale degli appalti START (link diretto al bando https://start.toscana.it/tendering/tenders/014150-2024/view/detail/1)

Il progetto
Di seguito alcuni estratti dalla Relazione tecnico-illustrativa generale e dalla Relazione architettonica redatte dall’arch. Antonio De Paola e dall’ing. Liliana Bucchiarone:
L’area di intervento, per localizzazione e vocazione rappresenta uno snodo fondamentale per le dinamiche del centro cittadino. La prossimità alle zone turistiche della Venezia lato nord, ed all’asse di via Grande, la vicinanza al perimetro del pentagono buontalentiano e alla città nuova, rendono quest’area crocevia di molteplici flussi: quelli che convogliano i turisti da e verso il porto, e per le strade del centro si mescolano alla quotidianità cittadina, ai ritmi della brulicante attività mercatale. A questa dinamica di attrazione dei flussi è strettamente connessa l’evoluzione delle pratiche che prendono posto nell’area. Al tradizionale mercato alimentare mattutino, si sono affiancate nel tempo attività connesse allo svago e alla cultura gastronomica, grazie anche alla presenza dello storico Mercato delle Vettovaglie, che oltre ad offrire ampi spazi commerciali (e quindi di incontro, di relazione sociale), nobilita lo scenario architettonico dell’area con le sue eleganti forme neoclassiche. Un’area, dunque, che ha la possibilità di emergere come volano economico e luogo di produzione culturale, come infrastruttura, cioè, di una vita civica variegata, eterogenea e ricca di pratiche di scambio materiale ed intellettuale. 
La varietà di scenari che caratterizzano gli accessi e gli attraversamenti dell’area, sono diretta conseguenza della complessa articolazione spaziale del comparto, con l’asse di via del Giglio/via del Cardinale lungo il quale si innestano 4 direttrici trasversali, dalle qualità morfologiche e ambientali eterogenee. In meno di 300 metri lo scenario è in mutamento continuo. Dalle atmosfere prettamente urbane della via Grande (che con il relativo progetto di riqualificazione si appresta a divenire elegante salotto cittadino), attraverso la via del Giglio, mentre il rumore del traffico si affievolisce, si passa all’ampio slargo di piazza Cavallotti, e ci si immerge in una mescolanza di architetture di epoche diverse, una varietà di segni che costituisce il carattere stesso dell’area mercatale, e ne testimonia le travagliate trasformazioni, conseguenza, anche, delle distruzioni del secondo conflitto mondiale.
Al rumore del traffico si sostituisce il brusio del commercio: dalle otto del mattino e fino alle 13, gli operatori del mercato occupano, con i loro coloratissimi stalli ricolmi di frutta e ortaggi, tutto lo spazio possibile, anche disordinatamente. Poi la piazza riprende a tranquillizzarsi, e dopo la pulizia pomeridiana riacquista l’animo di tranquilla piazza pedonale cittadina.
Proseguendo lungo l’asse lo spazio si restringe tra l’edificio della banca ed il piccolo edificio isolato che lo fronteggia e riprende i connotati di via urbana, congestionata durante le ore di mercato dalla presenza degli autonegozi, che completano l’offerta alimentare del mercato scoperto con la vendita di generi che vanno dal pescato alla tipica gastronomia da banco.    
Da questo piccolo tratto si ha infine accesso all’incrocio con la via Buontalenti. Qui, alla già citata eleganza del Mercato delle Vettovaglie fa da contraltare la disordinata eppure variopinta presenza degli stalli di vendita della merceria e dell’abbigliamento: 102 box metallici, organizzati secondo una disposizione a griglia, occupano il piazzale antistante l’edificio ottocentesco, addossandosi al portico dell’antistante linea residenziale, per trarre vantaggio del percorso coperto dei suoi portici. Un “labirinto” di vendita che, sebbene costituisca uno spazio potenzialmente pericoloso durante le ore notturne, di giorno si anima e diviene spazio colloquiale, dove gli operatori intessono relazioni anche durature con gli acquirenti, siano essi residenti o turisti. Una rete di corridoi molto stretti la cui intricata geografia, pur essendo punto di riferimento per i consumatori abituali, risulta però scoraggiante per i visitatori occasionali ed i turisti di passaggio che si limitano a frequentare gli assi esterni, il portico e la via antistante il mercato, come testimonia la progressiva chiusura degli stalli centrali.
Da qui il mutamento degli scenari è davvero sorprendente: il visitatore ha accesso al mercato coperto con le ammirevoli luci degli ambienti interni e la sua offerta enogastronomica e culturale, per poi raggiungere il suggestivo scorcio del Fosso Reale, il canale che ricalca il tracciato del pentagono Buontalentiano, dal quale si può proseguire verso la Venezia lato nord, o verso la città nuova antistante, cosi come tornare verso il porto dalla via Grande.
In tutta l’area, i fondi al piano terra degli edifici sono occupati da attività commerciali strettamente connesse all’attività mercatale. Una parte di questi locali al pian terreno viene usata come supporto alla vendita, ospitando magazzini, espositori ed alimenti durante le ore di inattività.
Alle potenzialità dell’area, dal punto di vista socio-economico, fanno da sfondo diverse fragilità strutturali che motivano la necessità di un intervento volto alla riqualificazione urbana e quindi alla valorizzazione delle qualità del quartiere. L’attività mercatale, in quanto motore attrattivo determinante per la caratteristica vitalità dell’area, deve saper convivere con maggior equilibrio con le altre attività durante tutta la giornata, garantendo gli standard di sicurezza adeguati per la popolazione residente e per i visitatori, che qui possono entrare in contatto con il lato autentico della città. L’infrastruttura urbana deve, e può, diventare più accogliente e ordinata, con una determinazione degli spazi chiara ed al contempo flessibile, che sappia esaltare la complessità del paesaggio urbano ed ospitare un ampia varietà di visitatori e funzioni possibili, oggi come in futuro.
Devono essere risolte inoltre le fragilità connesse all’obsolescenza delle strutture e trovate soluzioni tecniche per le pavimentazioni. L’Amministrazione comunale ha indicato nel documento di indirizzo alla progettazione le seguenti necessità:
- migliorare la qualità della funzione commerciale (raggiungibilità e visibilità del punto vendita, organizzazione della logistica di approvvigionamento e distribuzione delle merci);
- favorire l‘utilizzo degli spazi come luogo di incontro, sosta e convivialità (arredo urbano) sia nelle ore di chiusura che nelle ore di attività del mercato;
- progettare ed organizzare la distribuzione dei banchi all’interno di piazza Cavallotti da montare e smontare giornalmente;
- progettare ed organizzare la distribuzione dei banchi fissi per attività di commercio non alimentare in via Buontalenti;
- integrare attività e percorsi commerciali con la vita urbana del contesto cittadino promuovendo forme di utilizzo dell’area per l'intero arco della giornata e per la sera;
- caratterizzare dal punto di vista architettonico l’area del Centro Commerciale Naturale tramite caratteri, illuminazione e segni urbani riconoscibili in tutta l’area;
- caratterizzare i punti di accesso all'area mercatale in maniera complessiva e unitaria coerentemente con le caratteristiche fisiche e architettoniche dei singoli ambiti dell'area di intervento;
- con specifico riferimento all’intersezione tra via del Giglio e via Grande, è possibile immaginare un segno iconografico distintivo che, alla scala urbana, segnali l’ingresso nell’intera area mercatale promuovendone la presenza e la valorizzazione.

L’intervento prevede la trasformazione del fondo dell’area in un’unica superficie capace di adattarsi a diverse necessità funzionali e spaziali senza determinarle in maniera invariabile. È previsto che i salti di quota tra percorsi pedonali e carrabili spariscano completamente, restituendo una superficie topografica omogenea e flessibile, con particolare attenzione sia per i passaggi pedonali, sia per le rampe carrabili poste agli incroci con via del Cardinale e via S. Fortunata.
La superficie risultante dall'operazione di riqualificazione non avrà quindi salti di quota né gradini: tutte i dislivelli verranno raccordati attraverso un ridisegno delle pendenze, le zone limitrofe verranno raccordate ai piani ottenuti secondo un disegno che favorisca il deflusso delle acque ed al contempo favorisca l’accessibilità universale, eliminando le barriere. 

È inoltre previsto il restyling della pavimentazione dell’area di progetto. Verrà rimodulata l’attuale clivometria del fondo, che presenta problematiche di deflusso delle acque meteoriche (specialmente in piazza Cavallotti), provvedendo alla sostituzione della pavimentazione con l’utilizzo di materiali più idonei degli attuali, che sappiano resistere all’intensità delle varie attività.
I sistemi di pavimentazione prevista sono essenzialmente due:
- pavimentazione in lastre di peperino grigio;
- pavimentazione in cemento architettonico.
Con la prima si intende sostituire, ed in parte estendere, la pavimentazione attuale in arenaria, che fin qui ha mal sopportato le operazioni di pulizia quotidiane, come si evince dallo stato delle lastre in
piazza Cavallotti. Il peperino, difatti, si avvicina alle tonalità cromatiche dell’arenaria esistente, ma è caratterizzato da una durezza superiore in grado di resistere allo spazzamento meccanico quotidiano, pertanto è meno soggetto al deterioramento e necessita di poca manutenzione. Le tonalità del peperino si accostano elegantemente alla pavimentazione esistente (che verrà mantenuta in via del Giglio) conferendo alla passeggiata una rinnovata armonia. Inoltre l’indagine georadar istruita dall'Amministrazione e messa a disposizione dei progettisti, individua la presenza di un coacervo di sottoservizi, che presumibilmente andranno incontro alla necessità di essere ispezionati, riparati o deviati. La pavimentazione in lastre risulta facilmente ripristinabile in caso di lavori che necessitino di scavi. La posa della pavimentazione in lastre di peperino sulla massicciata esistente (eventualmente riparata e ricostituita) permette di aumentare le capacità drenanti rispetto all’asfalto esistente, aumentando la capacità di smaltimento in falda.
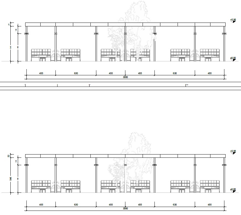
La pavimentazione carrabile dell’ambito 2 (via di Franco) risponde alla precisa esigenza di ospitare gli autonegozi. La finitura è in lastre di peperino per le corsie carrabili perimetrali mentre per le zone di sosta degli automezzi si è preferita una pavimentazione in cemento architettonico, di facile pulizia ed elevata resistenza superficiale, così da facilitare le operazioni di pulizia necessarie dopo lo sgombero quotidiano delle postazioni, e preparare l’utilizzo serale come dehor del giardino eno-gastronomico.
La pavimentazione in cemento verrà invece utilizzata per il sottofondo delle strutture mercatali e per le zone di transito principali. La scelta di tale sistema viene operata con lo scopo di ottenere una superficie durevole ed omogenea, in grado di migliorare la percorribilità dell’area sopportando le sollecitazioni di carico e di abrasione. Per l’ambito 3 (piazza Cavallotti) l’ispezionabilità degli strati ipogei e dei sottoservizi viene garantita mediante la suddivisione della pavimentazione in cemento in lastre gettate in opera, che possono essere demolite in caso di necessità e ricostituite al termine delle operazioni con un getto di completamento. La soluzione permette di ottenere grandi superfici omogenee ed accessibili ad un costo realmente contenuto. La ripavimentazione in cemento è prevista per l’area sotto la copertura e per quella di connessione centrale su via del Cardinale. Intorno alle superfici in cemento, la pavimentazione in lastre di arenaria viene sostituita dalle lastre in peperino.
Le superfici in cemento vengono rifinite tramite lucidatura per le zone al di sotto delle strutture, col fine di restituire una superficie liscia, elegante e facile da pulire. Le zone “carrabili” vengono invece solamente sgrossate tramite passaggio di mola, al fine di conferire un aspetto ruvido ed un maggiore coefficiente d’attrito.

Pur mantenendo l'assetto primariamente pedonale di tutta l’area, il progetto prevede la realizzazione di corsie carrabili, necessarie sia per le operazioni di carico e scarico che per l’eventuale passaggio dei mezzi di soccorso e antincendio. La localizzazione ed il dimensionamento di tali corsie sono pertanto basate sulla necessità di raggiungere il più presto possibile il perimetro esterno degli edifici esistenti e di quelli di progetto. In tal senso le strutture di progetto si adeguano attraverso l’utilizzo di piante dalle forme geometriche elementari.
La pavimentazione dell’ambito 4 (via del Giglio) è costituita da cemento architettonico posato sulla massicciata esistente. La nuova pavimentazione si inserisce centralmente nella superficie esistente in lastre di arenaria, che viene conservata poiché in ottime condizioni. La pavimentazione in cemento costituisce anche il fondo della fontana ornamentale, e viene interrotta soltanto dall’inserimento di due aiuole con grandi alberature, che hanno lo scopo di ombreggiare lo spazio circostante, migliorandone le caratteristiche ambientali.

L’intervento tende infatti a migliorare la relazione tra le attività umane e lo spazio costruito con un nuovo elemento mediatore, oggi completamente assente nell’area di progetto: la natura. L’intento è quello di configurare un nuovo Parco Commerciale Naturale per la città; un ambiente che favorisca l’aggregazione sociale di qualità, che incentivi la vita all’aperto, lo scambio di idee e la condivisione di momenti di benessere. Un luogo in cui l’attività culturale possa trovare spazio accanto a quella commerciale, definito da elementi capaci di integrarsi in maniera sostenibile con l’esistente.
La presenza degli alberi e di nuove superfici permeabili permetterà un incremento sostanziale del benessere termo-igrometrico dell’area, garantendo la presenza di zone d’ombra fresche e umide, il miglioramento della qualità dell’aria e delle qualità estetiche del quartiere. Le aree rinaturalizzate verranno arricchite dalla presenza di fontane di acqua potabile, giochi d’acqua e sistemi di irrigazione, concepiti assieme a sistemi di raccolta e immagazzinamento che verranno funzionalmente integrati nei nuovi manufatti architettonici e nell’infrastruttura urbana esistente. Via del Giglio e via del Cardinale divengono colonna dorsale alberata dell’intervento di rinaturalizzazione, distribuendo i flussi di persone dalla via Grande al Fosso Reale e intercettando i giardini di Piazza Cavallotti, via Buontalenti e via di Franco, ognuno con funzioni specifiche e qualità spaziali differenti. 
Il giardino di via Buontalenti è pensato come un’enclave di biodiversità: 230 mq di verde urbano con arbusti ed alberi ad alto fusto con percorsi trasversali che restituiscono continuità ai percorsi provenienti dal Mercato delle Vettovaglie e diretti verso il portico. Un piccolo bosco urbano che favorisce l’aggregazione ed incentiva il benessere psicologico dei visitatori, fungendo inoltre da fulcro del sistema di corridoi biologici inseriti nel parco. Eventi enogastronomici, eventi solidali, piccoli concerti e rappresentazioni teatrali potranno beneficiare di un elemento paesaggistico finora assente. Il giardino migliora la percezione di sicurezza dell’area delle ore notturne, fornendo un nuovo carattere all’atmosfera cittadina.
Il piccolo giardino enogastronomico di via di Franco assume il ruolo di catalizzatore dell’area: è un piccolo giardino di ingresso e uscita dal parco con la vocazione di spazio intimo per i residenti ed i lavoratori che vivono quotidianamente il quartiere. Il progetto lo configura come giardino enogastronomico, a supporto delle attività alimentari mobili, al mattino, e di quelle stabili, come bar e ristoranti, la sera.
Nell’ansa di Piazza Cavallotti la forma e la disposizione del giardino vengono dettati direttamente dalle qualità dello spazio esistente: un “Giardino delle Erbe” a pianta centrale, di impronta circolare, che assume il ruolo di accentratore dei flussi, un elemento di forte attrazione per i fruitori del parco provenienti dalla via Grande. Alberi ad alto fusto e piante aromatiche forniscono alla piazza una zona d’ombra naturale, migliorandone le qualità ambientali e le possibilità di fruizione, siano esse legate alla funzione mercatale o alla pluralità di interessi delle comunità residenti e come elemento di attrazione nel resto della giornata.
Posizionato all’incrocio con la via Grande, il giardino del Giglio è il nuovo accesso principale all’area mercatale: il suo disegno risponde alla necessità di attrarre e convogliare le persone verso il Parco Commerciale, invitandole a proseguire la passeggiata lungo il nuovo asse albeato di via del Giglio/via del Cardinale. In posizione centrale ed a sviluppo lineare, il giardino è dimensionato per assicurare l’accesso carrabile su entrambi i lati, gestendo i flussi in entrata e in uscita. Naturale prolungamento del giardino è la piazzetta lineare della fontana del Giglio, uno spazio del loisir caratterizzato dalla presenza di alberi ad alto fusto, panchine ed una nuova fontana rasoterra. Un ambiente confortevole e vivace che funge da spazio di aggregazione e da salotto naturale.
Ad integrazione del nuovo disegno urbano, il progetto prevede, oltre la piantumazione di essenze arboree in aiuola o in vaso lungo tutto l’asse di via del Cardinale, anche l’installazione di panchine, stalli per biciclette e cestini portarifiuti, che concorrono ad arricchire le capacità di accoglienza del parco.

 

 

Share button

Torna in cima alla pagina